项目咨询热线:18611995650(微信) 



首页 >> 产品 >>华为通信电源 >>华为通信壁挂电源柜 >> 华为MTS9510A-AA2101室外机柜
详细说明

华为MTS9510A-AA2101室外机柜

暂无价格
  • 产品说明

华为MTS9510A-AA2101室外机柜

2-12  外观

 

 

 

2-8  机柜指标

 

项目

指标

机柜外尺寸(高×宽×深)

2125mm×900mm×900mm

机柜重量

192kg

用户空间

设备舱 22U

电池空间

2 

每层净空间(高×宽×深):370mm× 700mm×700mm

温控方式

设备舱:PC1500H-1

电池舱:PC300D

 


 

项目

指标

防护等级

IP55

 

 

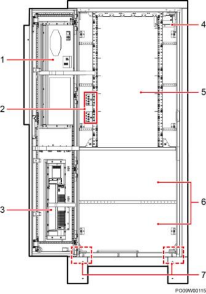
2-13  内部结构

 

1PC1500H-1             2)接地排                   3PC300D

4)馈线窗          5)用户设备安装空间         6)电池安装空间

7)走线孔



技术支持: 建站ABC | 管理登录
×
seo seo