项目咨询热线:18611995650(微信) 



首页 >> 产品 >>华为通信电源 >>华为通信壁挂电源柜 >> 华为MTS9300A-HX10A1室内机柜
详细说明

华为MTS9300A-HX10A1室内机柜

暂无价格
  • 产品说明

 华为MTS9300A-HX10A1室内机柜

 

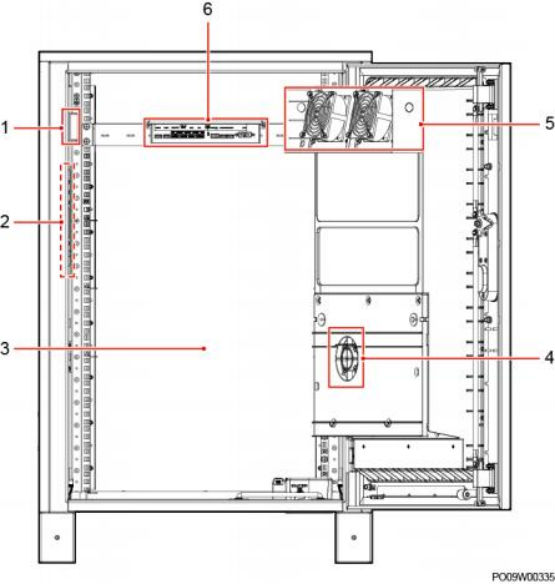
2-21 外观

 

 

2-12 机柜指标

 

项目

指标

机柜外尺寸(高×宽×深)

1000mm×650mm×650mm(包含底 座)

机柜重量

<65kg

用户空间

15U

 


 

项目

指标

温控方式

热交换

防护等级

IP55

 

 

2-22 内部结构

 

1 )门磁传感器                       2)机柜接地排                       3)用户设备安装空间

4)外循环风扇                       5)内循环风                       6TCUC控制盒



技术支持: 建站ABC | 管理登录
×
seo seo