项目咨询热线:18611995650(微信) 



首页 >> 产品 >>华为通信电源 >>华为通信壁挂电源柜 >> 华为ICC710-HA1H-C5室外机柜
详细说明

华为ICC710-HA1H-C5室外机柜

暂无价格
  • 产品说明

 华为ICC710-HA1H-C5室外机柜

 

4-19 ICC710-HA1H-C5 外观

 


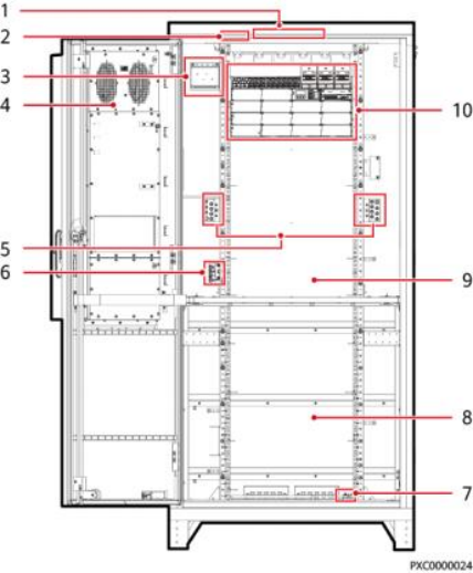
4-20 ICC710-HA1H-C5 内部结构(正面)

 

1 )照明灯                              2)烟雾传感器                       3温控设备电源转接盒

4)热交换                             5)接地排                             6数字温湿度传感器

7 )水浸传感器                       8)电池安装空间                    9)设备安装空间

10DCDU-600AN1


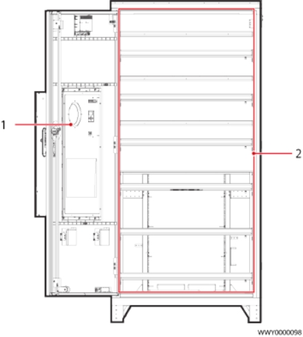
4-21 ICC710-HA1H-C5 内部结构(背面)

 

1 PC1500D-1                                  2)电池安装空间

 

4-8 ICC710-HA1H-C5 技术规格

 

项目

说明

室外机柜

温控:热交换HXC150S 150W/K散热能力(设备舱); 流空调PC1500D-1 1600W制冷量(电池舱)

尺寸(高××):1925mm×900mm×950mm(不含门外 凸部分),1925mm×900mm×1285mm(含门外凸部分)   重量:<320kg

安装方式:落地安装/楼顶安装

维护方式:前维护

走线方式:下进下出线

设备安装空间

13U

电池安装空间

最大支持4 3U  ESM电池+1FCB-A电池

工作温度

0℃~+45℃(包含太阳辐射),配加热盒时为–20℃~+ 45

运输温度

–40℃~+70

存储温度

–40℃~+70

工作湿度

5%RH95%RH(无凝露)

 


 

项目

说明

海拔要求

0m~4000m(在2000m~4000m环境下高温降额,每升高 200m,工作温度降低1 ℃)

噪声等级

满足GR487要求,噪声声压≤65dBA@1.5m(环境温度45℃ 时)

防护等级和工作环境

IP55 C类环境

其他要求

  没有导电尘埃和腐蚀性气体、没有爆炸危险

  灰尘度、腐蚀性物质、有害生物、霉菌等指标应符合ETSI EN 300 019-1-4( V2.2.1 Class 4.1要求


技术支持: 建站ABC | 管理登录
×
seo seo