|
华为TP48300B-N16C1 机柜
华为TP48300B-N16C1 机柜外观
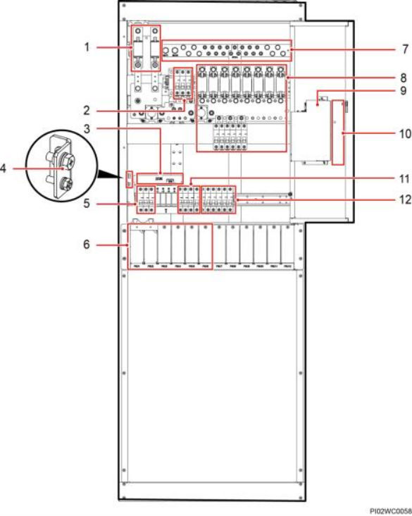
TP48300B-N16C1 内部结构(配置一)
(1)电池熔丝 (2)重要负载下电支路空 (3)机柜接地排 开 (4)交流输入空开 (5)整流模块安装空间 (6)RTN+母排 (7)次要负载下电支路空开或 (8)监控单元 SMU06C1 (9)SNMP 模块安装空 熔丝 间
(1)电池熔丝 (2)重要负载下电支路空开 (3)N 接线排 (4)机柜接地排 (5)交流输入空开 (6)整流模块安装空间 (7)RTN+母排 (8)次要负载下电支路空开或 (9)监控单元 熔丝 SMU06C1 (10)SNMP 模块安装空 (11)交流输出空开 (12)整流模块输入空 间 开 |


