项目咨询热线:18611995650(微信) 



首页 >> 产品 >>华为通信电源 >>华为通信壁挂电源柜 >> 华为MTS9302A-HA16A1室外机柜
详细说明

华为MTS9302A-HA16A1室外机柜

暂无价格
  • 产品说明

华为MTS9302A-HA16A1室外机柜

 

2-5 外观

 

 

2-3 机柜指标

 

项目

指标

机柜外尺寸(高××深)

1600mm×650mm×650mm(包含底 座,不含机柜外凸部分)

机柜重量

<135kg(不含整流模块和电池)

用户空间

9U

温控方式

设备舱:热交换

电池舱: PC300D

防护等级

IP55

 


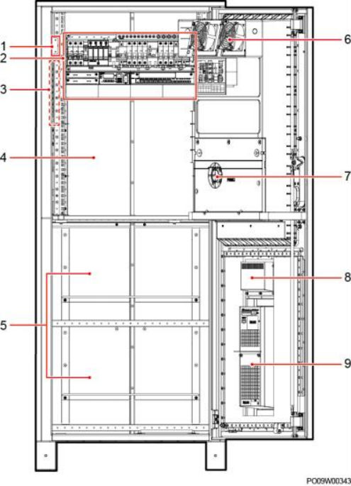
2-6 内部结构

 

1 )门磁传感器                       2)电源插框                           3)机柜接地排

4)用户设备安装空间             5)电池安装空间                    6)内循环风扇

7 )外循环风扇                       8)排氢孔                             9PC300D



技术支持: 建站ABC | 管理登录
×
seo seo