项目咨询热线:18611995650(微信) 



首页 >> 产品 >>华为通信电源 >>华为通信壁挂电源柜 >> 华为ICC330-HD1-C1室外机柜
详细说明

华为ICC330-HD1-C1室外机柜

暂无价格
  • 产品说明

华为ICC330-HD1-C1室外机柜

外观

 

3-21  ICC330-HD1-C1 的外观

 


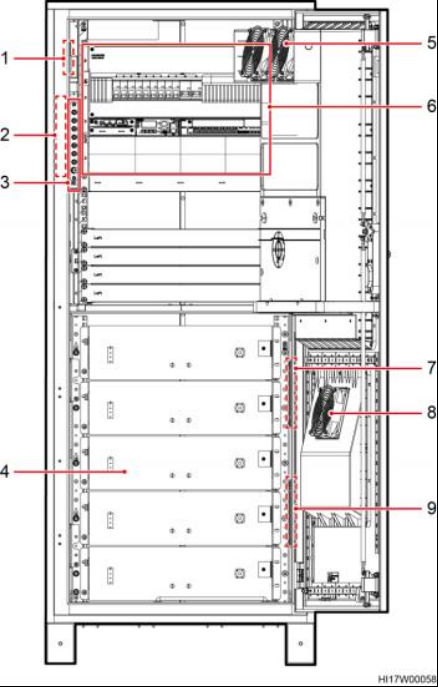
内部结构

 

3-22  ICC330-HD1-C1 的内部结构

 

1)温控供电转接盒       2)侧壁交流防雷       3)接地排

4)电池安装空间         5)热交换风扇         6DCDU-400AN2

7RTN+铜排            8)直通风风扇         9-48V 铜排

 

技术指标

 

3-13  ICC330-HD1-C1 技术指标

 

项目

说明

室外机柜

温控:

 


 

项目

说明


l 设备舱:热交换,换热能力 150W/K

l 电池舱:直通风散热

外形尺寸(高×宽×深):1600mm×650mm×650mm 重量:140kg

安装方式:落地安装/楼顶安装/靠墙安装

维护方式:前维护

走线方式:下进下出

电池安装空间

最大支持 50Ah×5S4850A1 电池)

设备安装空间

7U

工作温度

0℃~+40℃(锂电池在 0~10℃时充电电流≤0.1C 10~15℃时 充电电流0.2C 15~40℃时充电电流≤0.4C

运输温度

-40℃~+70

存储温度

-40℃~+70

工作湿度

5%RH95%RH(无凝露)

海拔要求

0m4000m(在 2000m4000m 环境下高温降额,每升高 200m,工作温度降低 1℃)

噪声等级

满足 GR487 要求,噪声声压65dB@1.5m(环境温度 45℃时)

防护等级和工作 环境

IP55 B 类环境

其他要求

l 没有导电尘埃和腐蚀性气体、没有爆炸危险

l 灰尘度、腐蚀性物质、有害生物、霉菌等指标应符合 ETSI EN 300 019-1-4V2.2.1Class 4.1 要求


技术支持: 建站ABC | 管理登录
×
seo seo