|
华为TP48600T-N20A6 室内通信电源系统
TP48600T-N20A6 是室内通信电源系统,将交流电转换为稳定的直流电,主要为 -48V 系列的通信设备进行供电。TP48600T-N20A6 最大输出电流是 600A,机柜外观如图 2-1 所示。
图2-1 TP48600T-N20A6 的机柜外观
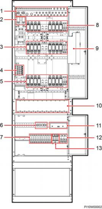
内部结构 图3-1 内部结构
(1)RTN+母排 (2)电池熔丝 (3)用户 2 直流输出空开和 熔丝 (4)用户 4 直流输出空开 (5)用户 1 直流输出 (6)机柜接地排 空开和熔丝 (7)整流模块空开 (8)用户 3 直流输出 (9)SMU06C2 空开和熔丝 (10)整流模块安装空间 (11)N 接线排 (12)交流输入空开 (13)交流防雷器
图3-2 直流配电单元
(1)用户 4 的 LLVD 空开 (2)用户 4 的 BLVD 空开 (3)用户 1 的 BLVD 熔丝 (4)用户 1 的 LLVD 空开和熔丝
|


