TP48600B-N16C2 是室内通信电源系统,将交流电转换为稳定的直流电,主要为 -48V 系列的通信设备进行供电。TP48600B-N16C2 最大输出电流是 600A,机柜外观如图 2- 1所示。
图2-1 TP48600B-N16C2 的机柜外观

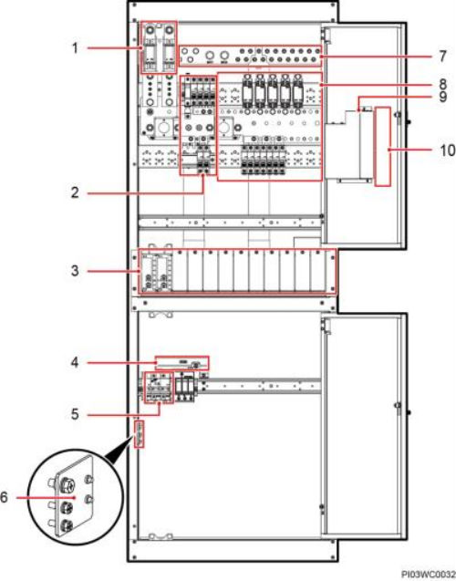
内部结构
图3-1 内部结构
(1)电池熔丝 (2)重要负载下电支路空开 (3)整流模块安装空
间
(4)N 接线排 (5)交流输入空开 (6)机柜接地排
(7)RTN+母排 (8)次要负载下电支路空开或熔 (9)监控单元 丝 SMU06C
(10)SNMP 模块安装空 间