项目咨询热线:18611995650(微信) 



首页 >> 产品 >>华为通信电源 >>华为通信壁挂电源柜 >> 华为通信电源柜TP48600B-N20A3
详细说明

华为通信电源柜TP48600B-N20A3

暂无价格
  • 产品说明

华为通信电源柜TP48600B-N20A3


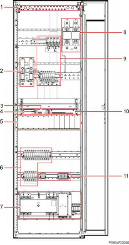
3-2  华为通信电源柜TP48600B-N20A3 内部结构

 

1RTN+母排               2)电池熔丝            3)监控单元

4)通信扩展模块安装空间    5)整流模块安装空间    6)交流输出空开


 

7)交流切换开关 ATS                 8)负载熔丝            9)直流输出空开

10)用户接口模块           11)交流 N 端子

 

 


技术支持: 建站ABC | 管理登录
×
seo seo