项目咨询热线:18611995650(微信) 



首页 >> 产品 >>华为通信电源 >>华为通信壁挂电源柜 >> 华为通信电源柜TP48300B-N20A3
详细说明

华为通信电源柜TP48300B-N20A3

暂无价格
  • 产品说明

2-1 华为通信电源柜TP48300B-N20A3 机柜外观

 


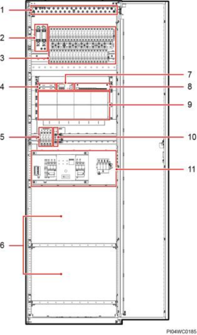
3-1  华为通信电源柜TP48300B-N20A3 内部结构

 


 

1RTN+母排             2)电池熔丝            3)直流输出空开

4)通信扩展模块安装空间  5)交流输出空开       6电池安装空间

7)监控单元              8)用户接口模块        9)整流模块安装空间

10)交流输入 N 端子       11)交流切换开关 ATS

 


技术支持: 建站ABC | 管理登录
×
seo seo