项目咨询热线:18611995650(微信) 



首页 >> 产品 >>华为通信电源 >>华为通信壁挂电源柜 >> 华为通信电源柜TP48300B-N04C1
详细说明

华为通信电源柜TP48300B-N04C1

暂无价格
  • 产品说明

2-1  华为通信电源柜TP48300B-N04C1机柜外观图

 

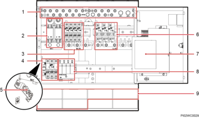
TP48300B-N04C1 内部结构如 3-1所示,TP48300B-L04C1 内部结构如 3-2所示。

 

3-1  TP48300B-N04C1 内部结构

 

1RTN+母排           2)电池熔丝            3BLVD 空开

4)交流输入空开及端子   5)接地排              6LLVD 空开

7)监控单元             8)交流防雷器(SPD   9)整流模块安装空间



技术支持: 建站ABC | 管理登录
×
seo seo