项目咨询热线:18611995650(微信) 



首页 >> 产品 >>华为通信电源 >>华为通信壁挂电源柜 >> 华为通信电源柜TP48400B-L20B1
详细说明

华为通信电源柜TP48400B-L20B1

暂无价格
  • 产品说明

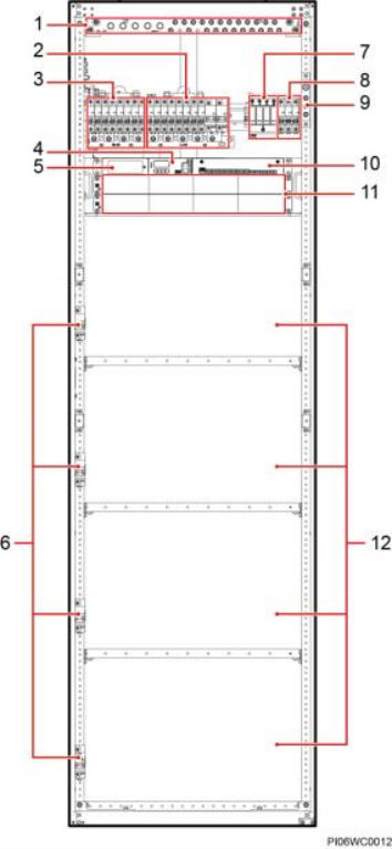
华为通信电源柜TP48400B-L20B12-1  机柜外观图

 

TP48400B-L20B1

 

3-5  华为通信电源柜TP48400B-L20B1 内部结构

 

1RTN+母排       2)次要负载下电支路

LLVD


 

 

 

 

 

 

 

 

 

 

 

 

 

 

 

 

 

 

 

 

 

 

 

 

 

 

 

 

 

 

 

 

 

 

 

 

 

 

 

 

 

 

 

3)重要负载下电支路 BLVD



技术支持: 建站ABC | 管理登录
×
seo seo