项目咨询热线:18611995650(微信) 



首页 >> 产品 >>华为通信电源 >>华为通信壁挂电源柜 >> 华为通信电源柜TP48400B-N20B3
详细说明

华为通信电源柜TP48400B-N20B3

暂无价格
  • 产品说明

华为通信电源柜TP48400B-N20B32-1  机柜外观图

 

华为通信电源柜TP48400B-N20B3

 

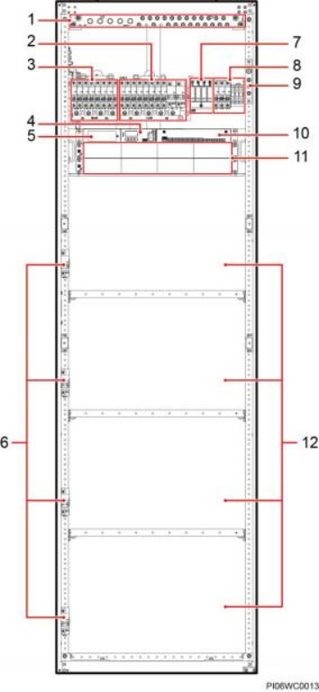
3-4  TP48400B-N20B3 内部结构

 

1RTN+母排       2)次要负载下电支路       3)重要负载下电支路

LLVD                  BLVD

4)监控模块        5)电池强制上电开关(盖板 6)电池空开 SMU02B                             后)


用户手册                                                                              3  部件介绍

 

7)交流防雷器      8)交流输入空开及端子     9)机柜接地排

10)用户接口模块   11)整流模块或太阳能模块  12)电池安装空间 UIM02C                             安装空间


技术支持: 建站ABC | 管理登录
×
seo seo