项目咨询热线:18611995650(微信) 



首页 >> 产品 >>华为通信电源 >>华为通信壁挂电源柜 >> 华为室外通信电源ESC200-N3
详细说明

华为室外通信电源ESC200-N3

暂无价格
  • 产品说明

华为室外通信电源ESC200-N3

 

2-4 外观

 


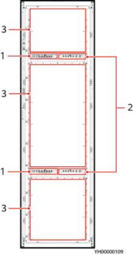
2-5 内部结构

 

1 RTN+铜排                        2-48V铜排                          3)电池安装空间

 

配置

 

2-3 ESC200-N3 的配置

 

项目

说明

室内机柜

温控:自然散热

外形尺寸(高××):2000mm×600mm×600mm 重量:96kg

安装方式:落地安装

维护方式:前维护

走线方式:上进上出

工作温度

0~50

运输温度

–40~70

存储温度

–40~70

工作湿度

5%RH~95%RH(无凝露)

海拔要求

0m~4000m

 


 

项目

说明

防护等级和工作环 

IP20,室内

其他要求

  没有导电尘埃和腐蚀性气体、没有爆炸危险

  灰尘度、腐蚀性物质、有害生物、霉菌等指标应符合

ETSIEN 300 019-1-3(V2.3.2 或更高版本)Class 3.1 要求


技术支持: 建站ABC | 管理登录
×
seo seo