项目咨询热线:18611995650(微信) 



首页 >> 产品 >>华为通信电源 >>华为通信壁挂电源柜 >> 华为室外通信电源MTS9604B-N18B1
详细说明

华为室外通信电源MTS9604B-N18B1

暂无价格
  • 产品说明

 华为室外通信电源MTS9604B-N18B1机柜外观

3-1 外观

 


华为室外通信电源MTS9604B-N18B101075546

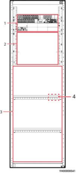
3-5 内部结构

 

1 ETP48400-C4A3                       2)用户设备安装空间             3)电池安装空间 01075323-006

4)电池温度传感器



技术支持: 建站ABC | 管理登录
×
seo seo