项目咨询热线:18611995650(微信) 



首页 >> 产品 >>华为通信电源 >>华为通信壁挂电源柜 >> 华为 MTS9300A-XA10A1室外通信电源
详细说明

华为 MTS9300A-XA10A1室外通信电源

暂无价格
  • 产品说明

 MTS9300A-XA10A1华为 MTS9300A-XA10A1室外通信电源

 

2-25 外观

 

 

2-14 机柜指标

 

项目

指标

机柜外尺寸(高××深)

1000mm×650mm×650mm(包含底 座,不含机柜外凸部分)

机柜重量

<65kg(不含电池)

温控方式

PC300D

防护等级

IP55

 


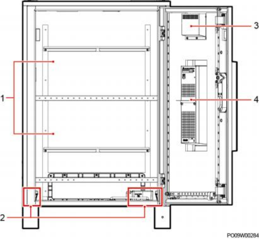
华为 MTS9300A-XA10A1室外通信电源图 2-26 内部结构

 

1 )电池安装空间                    2)走线孔                              3)排氢孔

4PC300D



技术支持: 建站ABC | 管理登录
×
seo seo