项目咨询热线:18611995650(微信) 



详细说明

华为MTS9300A-XD10A1

暂无价格
  • 产品说明

MTS9300A-XD10A1

 

2-23 外观

 

 

2-13 机柜指标

 

项目

指标

机柜外尺寸(高××深)

1000mm×650mm×650mm(包含底 座)

机柜重量

<55kg(不含电池)

温控方式

直通风

防护等级

IP34

 


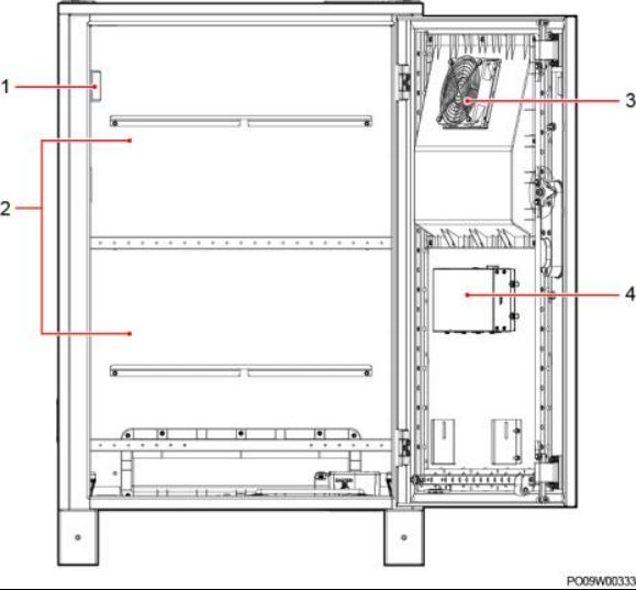
2-24 内部结构

 

1 )门磁传感器                       2)电池安装空间                    3)直通风风扇

4TCUC控制盒



技术支持: 建站ABC | 管理登录
×
seo seo