项目咨询热线:18611995650(微信) 



首页 >> 产品 >>华为通信电源 >>华为通信壁挂电源柜 >> 华为MTS9303A-BX16A1室外机柜
详细说明

华为MTS9303A-BX16A1室外机柜

暂无价格
  • 产品说明

MTS9303A-BX16A1

 

2-9 外观

 

 

2-5 机柜指标

 

项目

指标

机柜外尺寸(高××深)

1600mm×650mm×650mm(包含底 座)

机柜重量

<170kg(不含整流模块和电池)

用户空间

9U

温控方式

交流空调PC1500H-3+直通风

防护等级

IP55

 


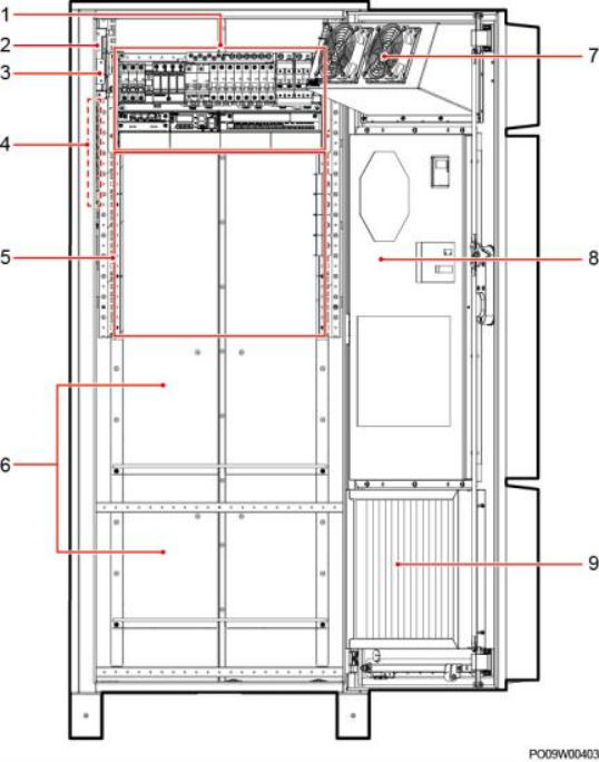
2-10 内部结构

 

1 )电源插框                          2)交流输出盒                        3)门磁传感器

4)机柜接地排                       5)用户设备安装空间             6)电池安装空间

7 )外循环风扇                      8PC1500H-3                                 9)防尘网


2-11 交流输出盒

 

1 )万能维护插座和保护空开                            2)交流输出空开和端子

 


技术支持: 建站ABC | 管理登录
×
seo seo