项目咨询热线:18611995650(微信) 



首页 >> 产品 >>华为通信电源 >>华为通信壁挂电源柜 >> 华为PDU8000-0800DCV8-BXA001电池开关保护盒
详细说明

华为PDU8000-0800DCV8-BXA001电池开关保护盒

暂无价格
  • 产品说明

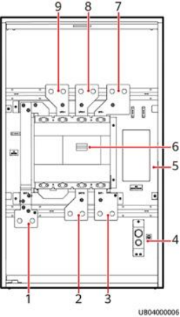
PDU8000-0800DCV8-BXA001 内部结构

 

 

1 )电池侧正极                    2)电池侧N                     3)电池侧负极

4)接地端                          5BIB控制板                     6)断路器

7 UPS侧负极                    8UPSN                     9UPS侧正极


技术支持: 建站ABC | 管理登录
×
seo seo